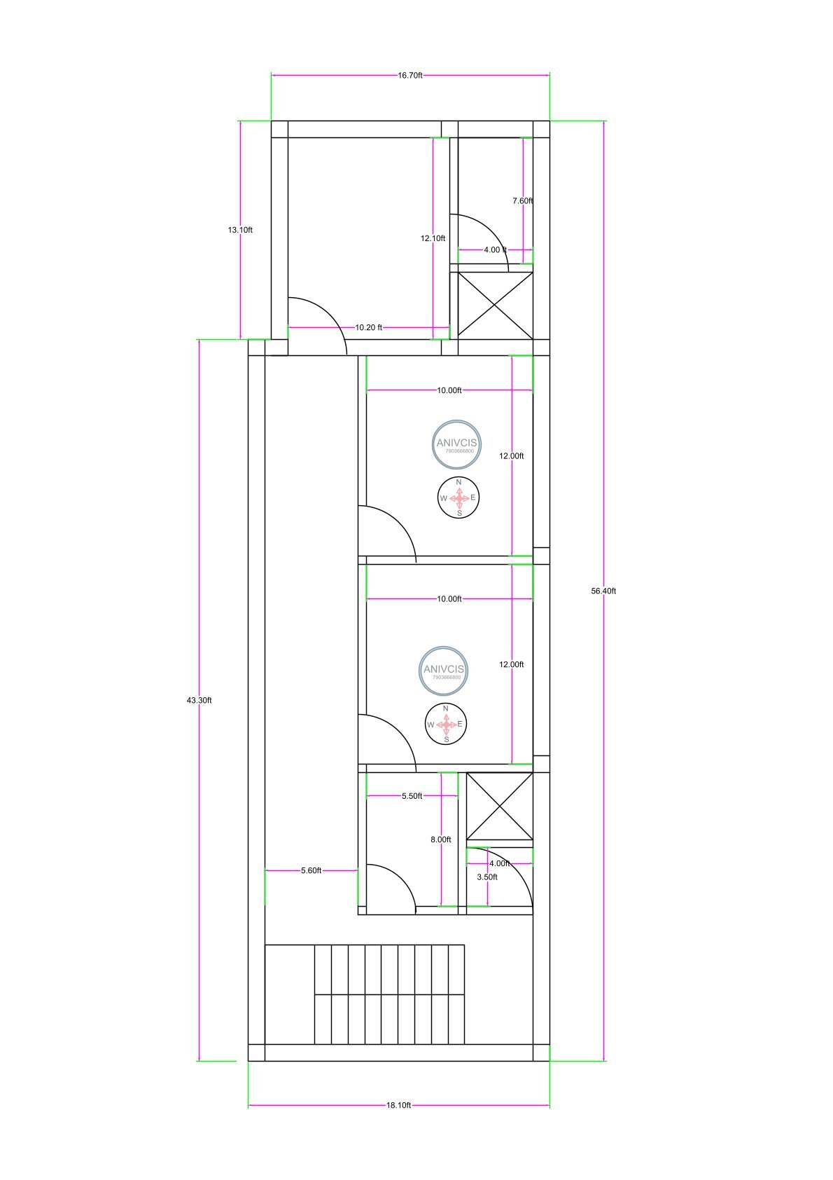
This sample floor plan represents an 18-foot-wide residential layout that begins with a slightly narrower front width of approximately 16.70 feet, gradually expanding toward the rear. The design demonstrates how ventilation and daylight can be effectively managed in a long rectangular configuration measuring around 56 feet in depth.
Upon entering from the 16.70-foot-wide frontage, you arrive at a guest room or drawing room located at the front. This space includes an attached toilet and is supported by an OTS (Open to Sky) shaft. The OTS plays a crucial role by bringing natural sunlight and cross ventilation into the drawing room, toilet, and adjacent bedroom areas.
Moving inward, a passage connects to another bedroom. A second OTS is strategically positioned further along the plan, ensuring airflow and light reach deeper into the house. Near this section, a compact 3×4 feet toilet is provided for functional convenience.
Toward the rear, an 8×5.5 feet kitchen is arranged efficiently within the available width. The staircase is located at the back end of the layout, allowing vertical access without interfering with the front living zones.
This illustration highlights how dual OTS shafts, logical room sequencing, and a rear staircase can transform a narrow-front plot into a well-ventilated and functional living arrangement.












Reviews
There are no reviews yet.