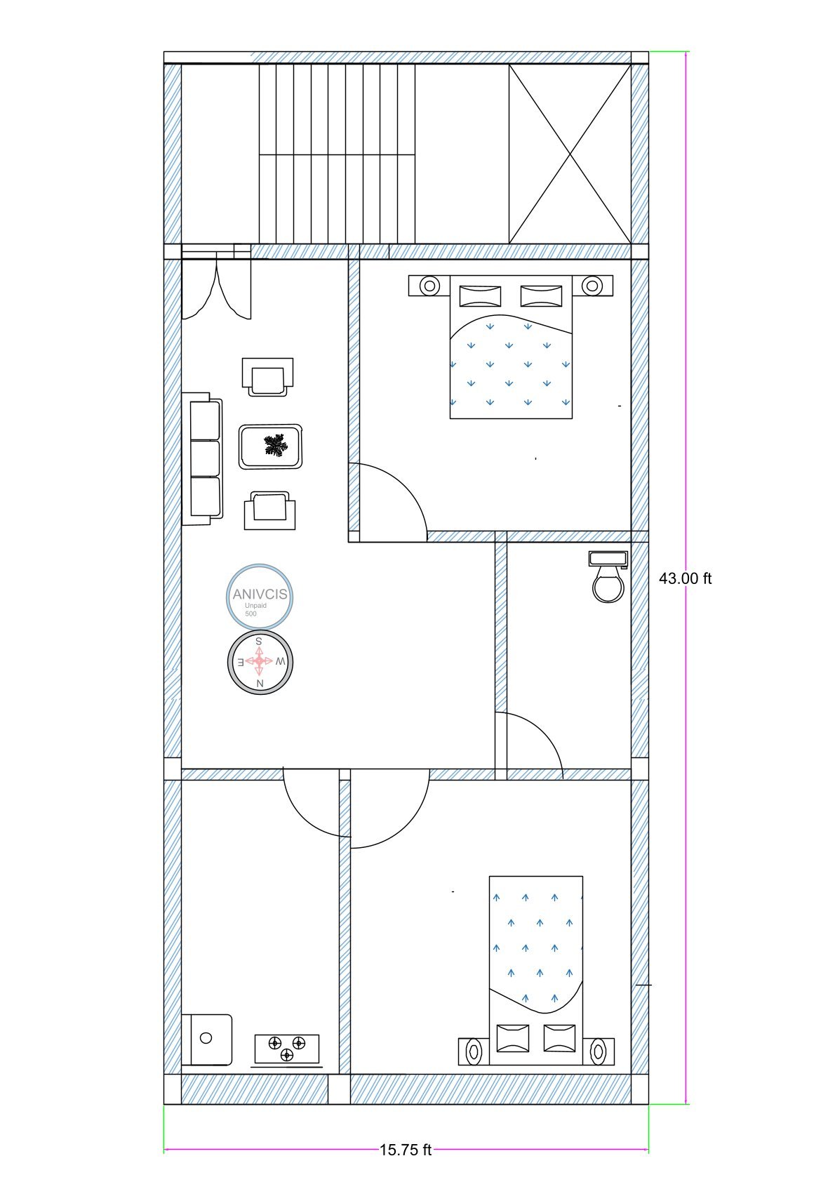
This smartly designed 2BHK house plan is developed on an exact plot size of 15.75 feet by 43 feet, which can easily be optimized or adjusted to a standard 15×45 feet plot for better site utilization and SEO-friendly dimensions. The layout is compact yet highly functional, making it ideal for small urban plots and residential colonies.
The house includes two well-proportioned bedrooms, each approximately 10 feet by 12.5 feet, offering balanced space for bed placement, wardrobes, and movement circulation. The uniform room sizing creates symmetry in planning and ensures comfortable living for a small family.
A common toilet of approximately 8 feet by 4 feet is positioned efficiently for accessibility without disturbing the privacy of the bedrooms. The kitchen is compact and practical, approximately 5 feet wide with an extended length of about 12.5 feet (or configurable around 5×4.5 ft working zone depending on adjustment), allowing efficient platform planning and ventilation.
The central portion of the house forms an L-shaped drawing/living area, which enhances spatial perception and allows better furniture arrangement. This shape also improves circulation between rooms and maintains privacy from the entrance.
One of the key highlights of this design is the front dog-legged staircase occupying around 7 feet by 14 feet space. Positioned at the entrance, it allows future vertical expansion and rental flexibility while maintaining a compact footprint.
Being a west-facing house, Vastu considerations have been carefully incorporated. The kitchen placement supports the southeast working principle (within west-facing logic), bedrooms are positioned for stability and rest, and entry alignment is planned to maintain positive energy flow. This 15×45 compact 2BHK layout is ideal for modern families seeking affordability, expandability, and Vastu-balanced living.




















Reviews
There are no reviews yet.