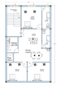
This 18×48 feet 3BHK house plan offers a balanced combination of space utilization and comfortable room proportions within a mid-depth urban plot. With an 18-foot frontage and 48-foot length, the layout accommodates three bedrooms and essential living areas without overcrowding.
At the front portion, a 6-foot-wide staircase provides convenient access to upper floors, making the design suitable for duplex development or rental flexibility. Adjacent to the staircase, two common toilets are positioned for easy accessibility while maintaining privacy from the main living zones.
The drawing room is centrally located and connects smoothly to a defined dining area measuring approximately 10.5 feet in length. This arrangement creates a functional social zone that separates the bedrooms from the entrance.
Three bedrooms are distributed along the depth of the layout, with approximate sizes ranging between 10 to 12 feet, offering comfortable space for furniture placement and storage. The kitchen, sized around 5.5×9 feet, is placed toward the rear corner to ensure a dedicated cooking area away from the main seating space.
Overall, this 18×48 configuration provides a practical three-bedroom arrangement, logical zoning of utilities, and convenient vertical connectivity—making it ideal for families seeking an efficient and expandable home design.




















Reviews
There are no reviews yet.