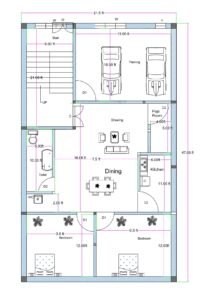
This 18×57 feet floor plan is designed in a lodge or hostel-style configuration, ideal for rental accommodation, paying guest setups, or small guest house operations. With an 18-foot frontage and 57-foot depth, the layout efficiently organizes multiple rooms along a common circulation path.
The plan includes four separate rooms, each approximately 10.5 feet in width and around 11.5 to 12 feet in depth. These rooms are arranged sequentially along one side of the building, providing private sleeping spaces suitable for tenants, students, or short-term guests.
A 6-foot-wide corridor runs along the length of the layout, ensuring smooth movement and independent access to each room. At one end of the building, a block of three shared toilets (approximately 4 feet wide each) is provided, making the design practical for hostel or dormitory-style use.
The staircase is positioned at the front section, allowing access to upper floors if expansion is planned. This makes the structure scalable for additional rental units in the future.
Overall, this 18×57 configuration is optimized for income-generating residential use, offering efficient room alignment, shared amenities, and clear circulation suited for lodge, PG, or small hostel development.




















Reviews
There are no reviews yet.