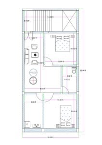
This drawing presents the revised and color-enhanced version of the earlier irregular mixed-use layout developed on an approximately 25×20 feet tapered plot. In this updated plan, structural walls and columns are clearly highlighted for better visual understanding and construction clarity.
The entrance positioning has been refined to improve circulation between the commercial and residential sections. The front shop remains directly accessible from the street, maintaining its commercial viability, while the internal movement toward the residential portion has been made more organized through a clearly defined passage.
Column locations are distinctly marked, making the structural framework easier to interpret. This ensures proper load transfer alignment and simplifies execution on an irregular boundary. The staircase placement remains integrated within the layout, allowing potential access to upper floors without disturbing shop operations.
The bedroom and toilet arrangement is maintained with slight adjustments for improved spatial flow. The use of color differentiation helps distinguish structural components, wall thicknesses, and room divisions more clearly than the earlier version.
Overall, this updated design refines the original irregular plan by improving entrance logic, clarifying column placement, and enhancing presentation for practical implementation on a uniquely shaped urban plot.




















Reviews
There are no reviews yet.