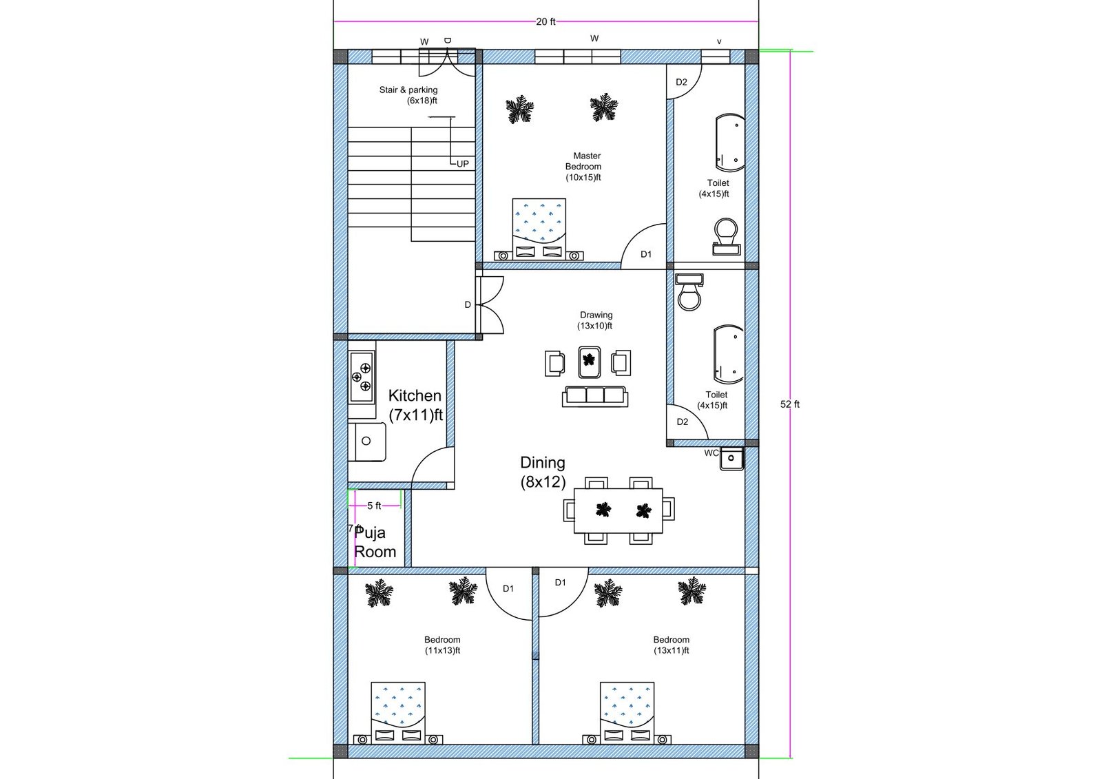
Explore this thoughtfully designed 20×52 feet 3BHK house plan, ideal for narrow and deep residential plots. With a 20 feet frontage and 52 feet depth, this layout efficiently accommodates spacious living areas, proper ventilation, and practical room distribution.
At the front portion, the plan includes a staircase combined with parking space, allowing vehicle accommodation and smooth vertical expansion for future floors. Upon entering the home, you are welcomed into a well-proportioned drawing room measuring approximately 13×10 feet, offering comfortable seating space for guests and family gatherings.
Connected to the drawing room is a spacious dining area (approximately 8×12 feet), ensuring easy circulation between rooms. The kitchen measures around 7×11 feet, providing ample platform space and storage arrangement for daily cooking needs. A dedicated puja room is positioned conveniently near the dining area, enhancing spiritual functionality within the home.
The layout includes three well-sized bedrooms, including a master bedroom with attached toilet. A second common toilet is provided for guests and family members. Proper window placement ensures cross-ventilation and natural light.
This 20×52 3BHK house design is perfect for medium-sized families seeking comfort, practicality, and future expansion flexibility on a compact urban plot.




















Reviews
There are no reviews yet.