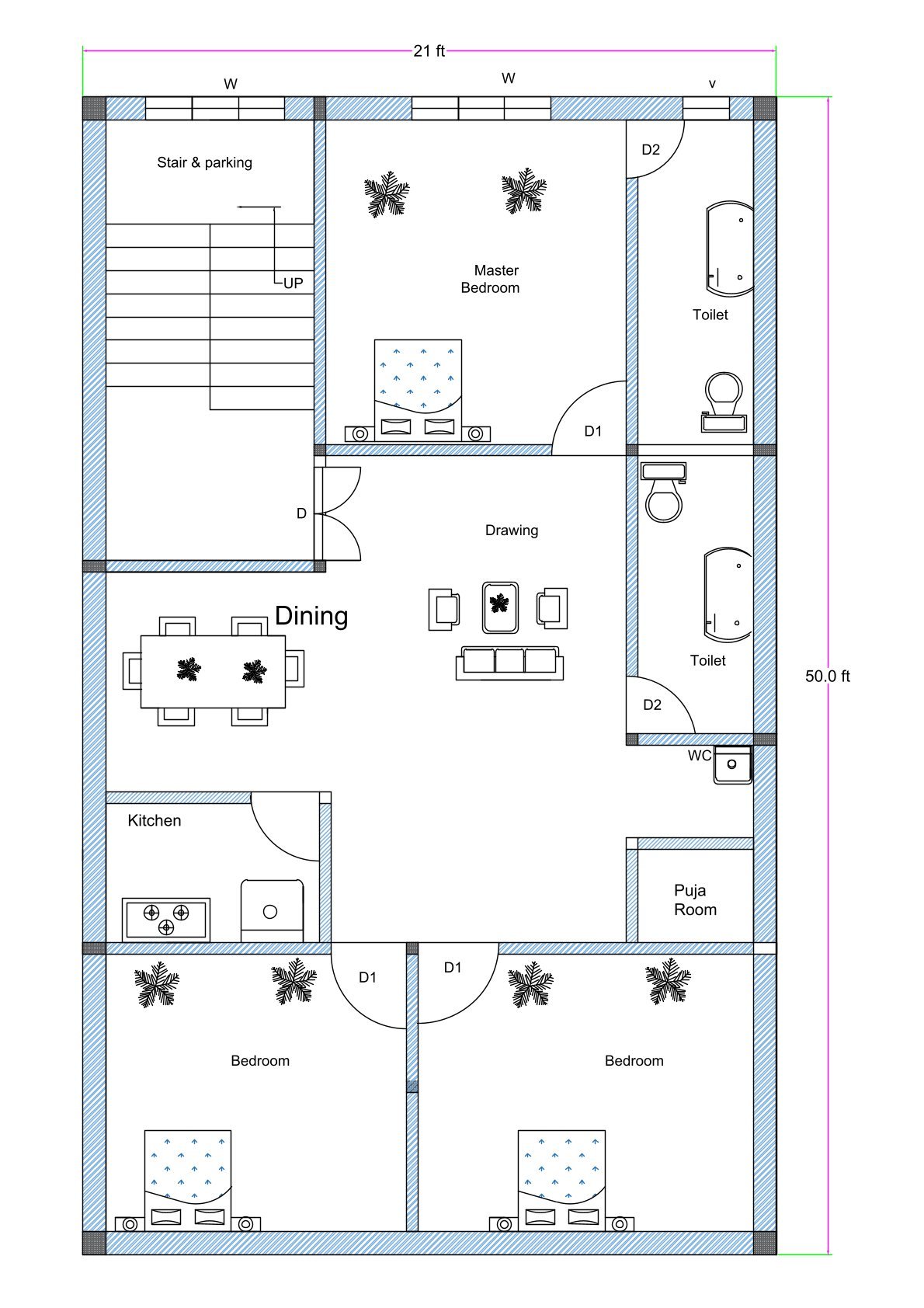
Explore this thoughtfully arranged 20×50 feet 3BHK house plan (approximately 21 feet frontage × 50 feet depth), ideal for narrow and deep residential plots. This conceptual layout focuses on functional zoning and comfortable family living.
At the front portion, the design includes a staircase combined with parking space, allowing vehicle accommodation and smooth access to upper floors for future expansion. After entering the house, you are welcomed into a spacious drawing room that connects seamlessly to the central dining area, creating an open and airy atmosphere.
The kitchen is positioned conveniently near the dining space, ensuring efficient workflow and daily usability. A dedicated puja room is provided, offering a peaceful and spiritual corner within the house.
The layout includes three well-proportioned bedrooms. The master bedroom is positioned toward the front side for privacy, while the two additional bedrooms are located at the rear portion of the plot. Two toilets are provided along one side of the layout for easy access and proper plumbing alignment.
This 20×50 (approx. 21×50) 3BHK house design is ideal for medium-sized families seeking parking convenience, spiritual space, and future expansion flexibility within a compact urban plot.


















Reviews
There are no reviews yet.