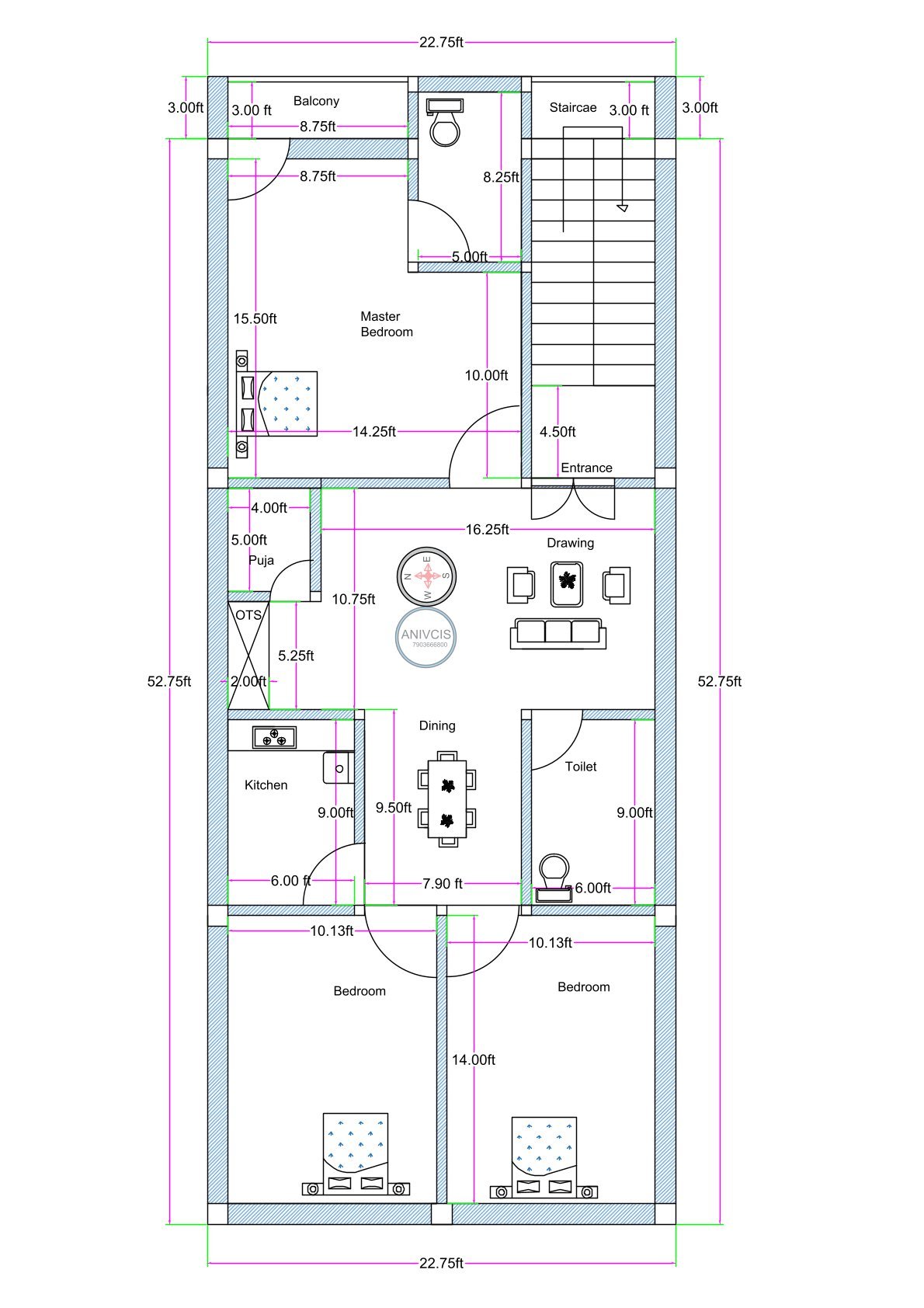
Explore this intelligently designed 23×53 feet west-facing premium 3BHK house plan (actual size 22.75 ft × 52.75 ft), crafted for compact urban plots while maintaining luxury, ventilation, and Vastu compliance.
The design welcomes you through a well-defined entrance leading into a spacious drawing room measuring approximately 16 feet in width. The central dining area connects seamlessly with all major spaces, ensuring smooth circulation and openness.
A dedicated puja room is positioned in the northeast zone of the layout, aligning perfectly with Vastu Shastra guidelines to enhance spiritual harmony and positive energy flow.
The kitchen is strategically placed in the southeast (Agni corner), which is considered ideal for fire-related activities according to Vastu. An attached OTS (Open to Sky) shaft ensures excellent ventilation and natural light, maintaining hygiene and airflow.
The house includes:
A spacious master bedroom located toward the southwest zone for stability and authority.
Two additional bedrooms placed for balanced energy distribution.
A well-positioned common toilet aligned along one plumbing wall for efficiency.
A staircase is provided at the rear side of the layout, allowing independent vertical expansion for future floors without disturbing internal privacy.
Vastu Highlights (West-Facing)
West-facing entrance balanced with proper internal zoning.
Master bedroom in southwest for strength and stability.
Kitchen in southeast (Agni corner).
Puja room in northeast.
OTS improves ventilation and energy circulation.
This 23×53 west-facing premium compact home is ideal for families seeking smart space utilization, Vastu alignment, and future expansion flexibility.




















Reviews
There are no reviews yet.