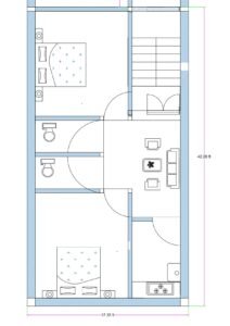
This 23×24 ft 2BHK house plan is designed for compact residential plots where space-saving and smart planning are essential. Despite the small dimensions, the layout ensures complete functionality, offering two bedrooms, a drawing room, a kitchen, a toilet, and a staircase—all arranged efficiently within a square-shaped plot.
The design features two equal-sized bedrooms, each measuring approximately 10.5 ft × 10.5 ft. These rooms are positioned adjacent to each other for structural simplicity while providing privacy for family members. Both bedrooms are spacious enough for double beds, wardrobes, and essential furniture.
At the center of the home lies the drawing room, measuring 15.6 ft × 12 ft, making it the main living space of the layout. This room is ideal for family gatherings, entertainment setups, and visitor seating. Its central location allows smooth movement to all other rooms.
The kitchen, measuring 6 ft × 6 ft, is compact yet functional, designed to accommodate cooking appliances and basic storage. It is placed conveniently next to the drawing room for easy access and ventilation.
The common toilet, sized 6.5 ft × 6 ft, is placed near the bedrooms and close to the staircase for quick access from all parts of the house. This makes daily usage comfortable for residents and guests alike.
The staircase area, located on the right side, is well-proportioned at 9.3 ft length and suitable for accessing future upper floors such as additional rooms, rental units, or a terrace.
This layout is ideal for:
• Small family homes
• Rental houses
• Budget-friendly construction
• Village and town residential plots
• First-time home builders
• G+1 or G+2 expandable homes
With efficient space utilization, simple structure, and balanced room sizes, this 23×24 ft 2BHK house plan provides a practical, low-cost, and comfortable living solution for small plots.




















Reviews
There are no reviews yet.