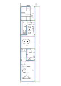
Explore this intelligently planned 22×42 feet north-facing 2BHK house design, crafted for compact urban plots with maximum space efficiency and proper Vastu alignment.
The house features a staircase entrance at the front, providing independent access to upper floors if required. A 4-foot front margin is left open for balcony and ventilation, ensuring adequate light and airflow into the living space.
Inside, the central hall is spacious enough to accommodate both drawing and dining functions comfortably. The layout maintains smooth circulation between rooms without wasting space.
The master bedroom is positioned at the rear for privacy and stability, and it includes an attached toilet for convenience. The second bedroom is located near the hall and is served by a common toilet, making it suitable for guests or family members.
The kitchen is positioned strategically with a 3-foot rear setback left for balcony and ventilation, improving airflow and maintaining hygiene.
Vastu Considerations (North-Facing)
North-facing entrance enhances prosperity and financial growth.
Master bedroom placed toward southwest zone for stability.
Kitchen ideally positioned toward southeast (Agni corner concept).
Toilets kept away from northeast area.
Proper front and rear ventilation improves positive energy circulation.
This 22×42 north-facing smart 2BHK house plan is ideal for modern families seeking compact luxury, proper ventilation, and Vastu-balanced living.




















Reviews
There are no reviews yet.