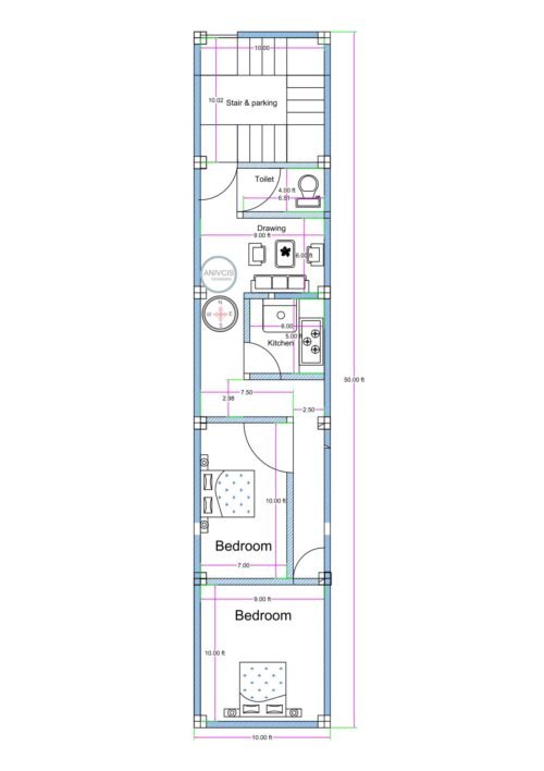
Explore this intelligently planned 22×75 feet residential layout designed for a narrow and deep plot where the front portion is slightly wider than the rear. This concept floor plan features a front one-room set that can be used as a rental unit, studio room, guest accommodation, or small office space. A 4-foot-wide L-shaped passage is strategically provided beside the front unit to ensure independent access to the staircase without disturbing the privacy of the front room. The staircase allows smooth connectivity to upper floors where additional one-room or two-room units can be developed.
Behind the staircase, a well-organized 2BHK layout is planned on the ground floor, consisting of two bedrooms, a common toilet, a functional kitchen, a dedicated store room, and a centrally positioned drawing or living area that connects all spaces efficiently. This layout is ideal for rental income generation, multi-family housing, or investment purposes on long rectangular plots. The planning maximizes usable space while maintaining circulation, privacy, and future vertical expansion possibilities. Perfect for urban residential developments on 22×75 feet deep plots.












Reviews
There are no reviews yet.