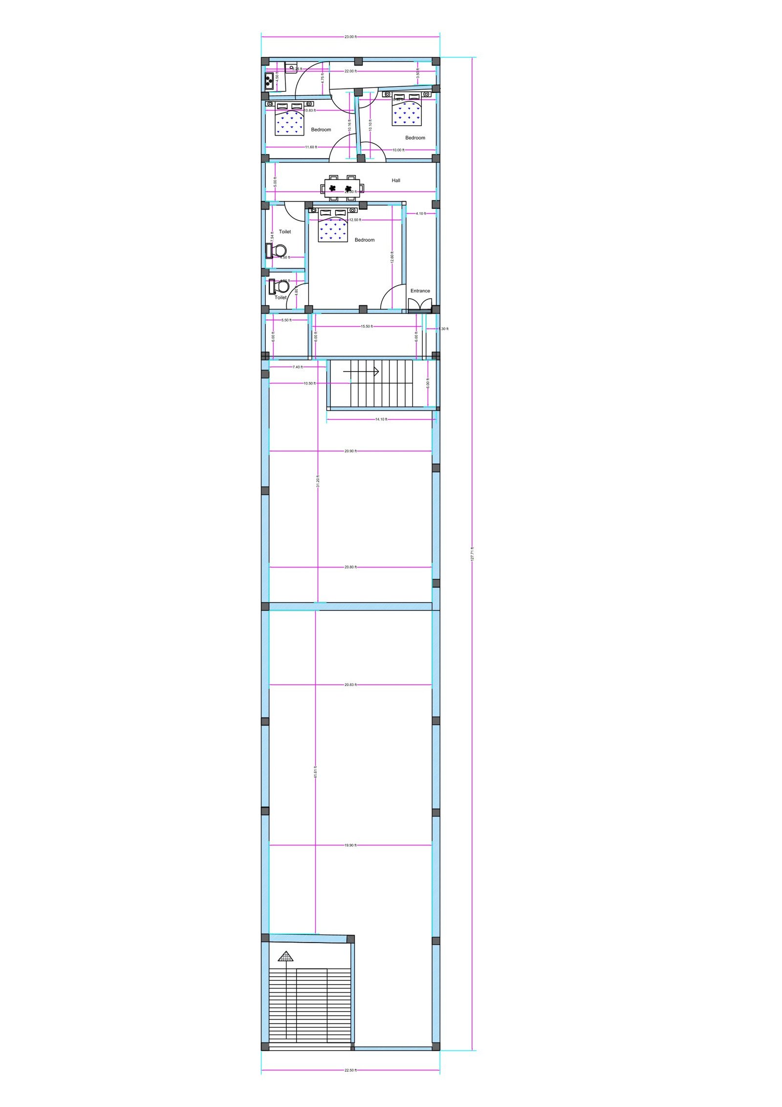
Looking for a building plan that combines commercial and residential spaces efficiently? This mixed-use layout features a spacious showroom in the front and a well-planned 3BHK house at the back, making it ideal for business owners who want to operate from home.
The front section of the design is dedicated to a large open showroom space with direct road access and shutter entry. This area can be used for retail shops, medical stores, offices, garment stores, hardware shops, or any small-scale commercial activity. Its open layout allows flexible interior arrangements depending on business needs.
Behind the showroom, a centrally located staircase ensures access to upper floors while maintaining separation between commercial and residential zones. The rear portion of the building includes a thoughtfully designed 3BHK home layout consisting of three bedrooms, a central hall or dining area, a functional kitchen, and a toilet.
The design ensures privacy for the family while allowing uninterrupted business operations in the front area. This plan is especially suitable for long plots in urban or semi-urban areas where mixed-use construction is common.
A showroom + 3BHK house combination like this maximizes land utilization, increases property value, and provides dual-income or convenience benefits for homeowners.




















Reviews
There are no reviews yet.