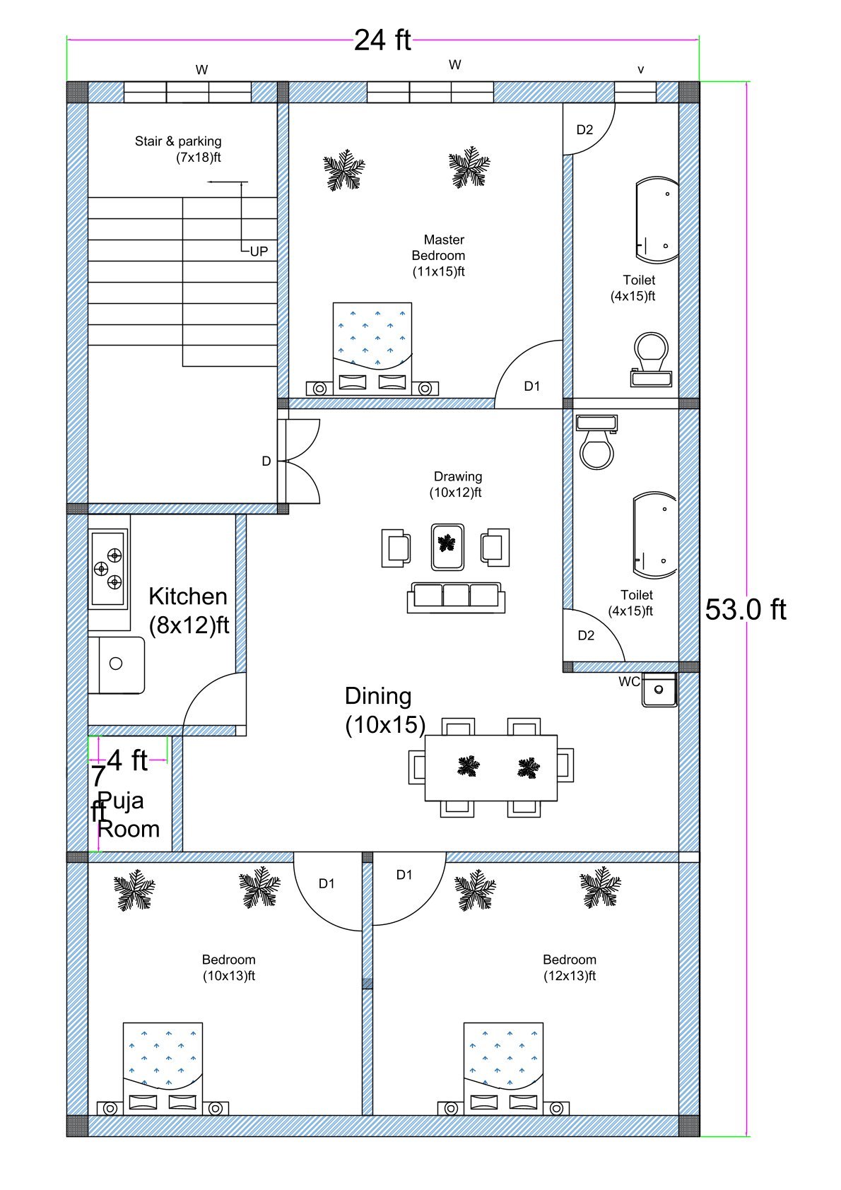
Searching for a practical 24×50 west-facing 3BHK house plan? This residential layout is designed on an actual 24 feet by 50 feet plot, offering approximately 1200 square feet of well-organized living space.
The plan includes three spacious bedrooms measuring 12 ft × 13 ft, 13 ft × 11 ft, and 11 ft × 13 ft, ensuring comfortable accommodation for all family members. The front portion features a drawing room (10 ft × 8 ft) suitable for guest interaction and daily use.
The kitchen, measuring 7 ft × 8 ft, is efficiently located near the living space for smooth workflow. The central highlight of the house is the large 15 ft × 13 ft dining hall, which acts as the core connecting area between bedrooms, kitchen, and staircase.
A dedicated 5 ft × 5 ft puja room enhances the traditional layout, making the design suitable for families who prefer a separate prayer space.
The staircase (6 ft × 12 ft) is placed in the middle-left section, allowing easy vertical circulation and making the structure ideal for duplex or additional floor construction. Multiple toilets and bathrooms are included to ensure convenience and functionality.
This 24×50 west-facing 3BHK house plan offers spacious planning, proper room proportions, and excellent expansion potential for modern families.












Reviews
There are no reviews yet.