26.83×25.83 ft 2BHK 2
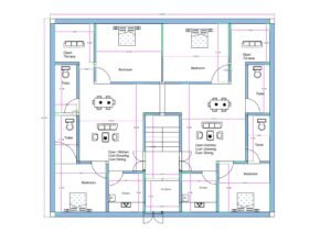
Looking for a compact 22.5×25 house plan? This well-designed 2BHK layout efficiently utilizes a small plot size while maintaining comfortable living space for a small family.
The plan includes two bedrooms measuring approximately 10 ft × 10 ft each, positioned at the rear for privacy. A centrally located drawing hall connects both rooms and serves as the main living and seating area.
The kitchen is placed at the front-right side of the house, allowing convenient access from the living area. A common toilet is positioned near the staircase, ensuring easy accessibility for residents and guests.
The staircase, approximately 7 feet wide, provides access to upper floors, making this house suitable for future expansion or rental potential.
A 3-foot-wide front balcony improves ventilation and provides natural light, making the compact layout feel more open and airy.
This 22.5×25 2BHK house plan is ideal for small urban plots, budget construction, and families seeking an efficient and expandable home design within limited space.




















Reviews
There are no reviews yet.