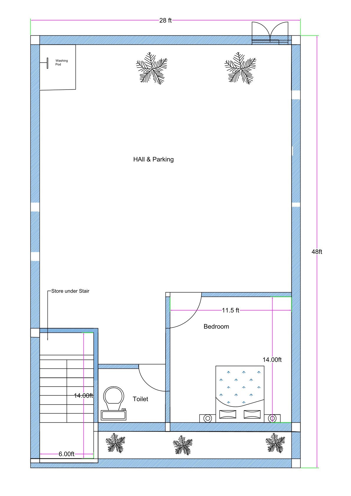
Looking for a 30×50 apartment ground floor parking layout? This design is built on an actual plot size of 28 feet by 48 feet and serves as the base floor for a multi-story 3BHK apartment building.
The ground floor is completely dedicated to parking and circulation, ensuring maximum vehicle accommodation without disturbing residential units above.
A 6-foot-wide staircase is provided on the left side, allowing residents to access the upper floors independently. This staircase connects directly to the 3BHK flats on the first, second, and third floors.
A small guard or caretaker room measuring approximately 11.5 ft × 14 ft is provided at the rear corner, along with a common toilet. This space can also function as a security room or temporary stay room.
A store space under the staircase improves functionality, and a washing area is positioned in one corner for convenience.
This 30×50 (actual 28×48) apartment ground floor plan is ideal for rental buildings where structured parking and vertical circulation are essential.




















Reviews
There are no reviews yet.