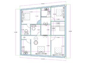
Explore this thoughtfully planned 30×45 4BHK house design that offers generous room sizes and efficient internal circulation within a 30-foot-wide residential plot. With a depth of 45 feet, the layout maximizes space utilization while maintaining comfort and privacy for family members.
The plan includes four spacious bedrooms arranged across both ends of the house. The top section features two bedrooms measuring approximately 12×10 feet and 10×10 feet, while the bottom section includes two larger bedrooms measuring around 14×11.5 feet and 11.5×10 feet, suitable for master bedroom use.
A large central dining space measuring approximately 21.5 feet in length forms the heart of the home, connecting bedrooms, kitchen, and drawing room seamlessly. The separate drawing room (around 9 feet wide) provides a private guest seating area.
The kitchen, positioned near the center bottom area and measuring approximately 10×5 feet, ensures functional workflow and easy accessibility. Multiple toilets (around 8×5 feet each) are placed at both the top and bottom sections for convenience and plumbing efficiency.
A staircase located on the left middle side provides access to upper floors, making the design suitable for duplex or multi-level construction. This 30×45 4BHK layout is ideal for large families seeking space, comfort, and practical architectural planning.




















Reviews
There are no reviews yet.