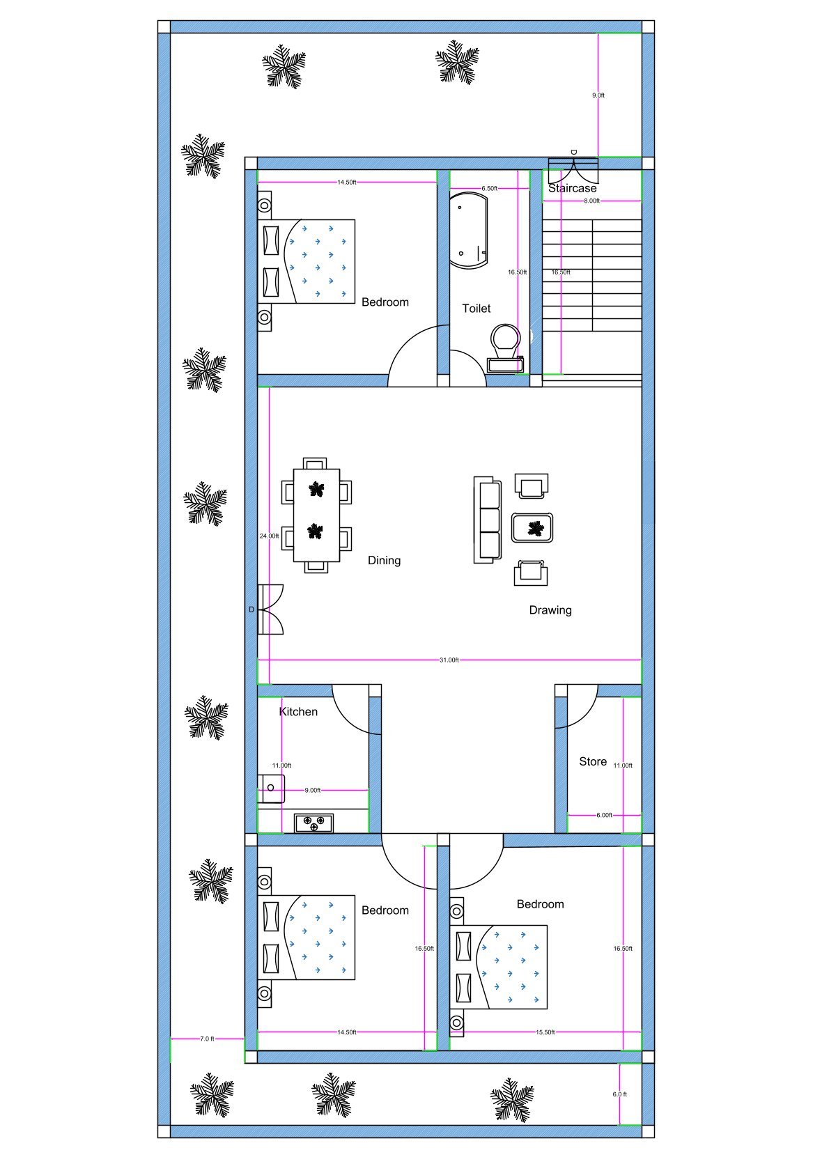
This thoughtfully designed 3BHK house plan for a 30×75 plot—constructed using an actual layout of 32×75 ft—is an ideal architectural solution for families who prefer long rectangular plots with maximum ventilation, privacy, and smooth internal circulation. The plan begins with a beautifully landscaped front setback, enhancing the aesthetic appeal and allowing natural airflow into the house. The staircase is strategically placed on the right side near the entrance, providing easy access to upper floors for duplex or multi-storey construction.
The front portion features a well-planned bedroom with an attached toilet, creating a perfect guest room or parent’s room. Its placement ensures privacy while maintaining convenient access to the common areas. The central portion of the layout is dedicated to a spacious drawing and dining hall, designed with excellent width to comfortably accommodate a full family sofa seating arrangement, TV unit, dining table, décor, and circulation space. This open-plan arrangement allows natural light to flow seamlessly from front to back.
Towards the middle, the layout includes a modular kitchen on one side and a well-sized store room on the opposite side, offering ample storage for groceries and household utilities. The kitchen is positioned for efficient workflow and ventilation, making cooking comfortable throughout the year.
At the rear of the house, the plan includes two symmetrical bedrooms, both measuring nearly identical sizes. These rooms are designed for children, guests, or extended family members, providing comfort and privacy. The long north–south layout ensures that all rooms receive cross ventilation from both sides of the plot, which is a major advantage of long rectangular plots like 30×75 or 32×75 ft.
This 30×75 (32×75 ft) 3BHK house plan is ideal for:
✓ Duplex homes
✓ Single-floor independent houses
✓ Rental units at the rear
✓ Vastu-friendly long plots
✓ Extended family living
Overall, the layout provides a perfect balance of space, airflow, simplicity, and modern design, making it highly suitable for Indian families needing a long-plot home with maximum comfort.




















Reviews
There are no reviews yet.