This efficiently planned 3BHK duplex house plan for a 35×45 plot—built using an actual layout size of 33.83×44 ft—provides a perfect mix of open space, practicality, privacy, and modern architectural planning. The design is ideal for families looking for a home with a spacious hall on the ground floor and a complete residential setup on the first floor.
Ground Floor Layout
The ground floor features a large open hall, perfect for gatherings, ceremonies, social functions, or transforming into a multipurpose living area. The wide hall ensures ample natural ventilation due to its open structure. Along the left side, a wash area and toilet are strategically placed for convenience.
A shop room is provided at the front, making the layout suitable for mixed-use purposes such as running a small business, office, or rental shop. This additional commercial space enhances the economic value of the house. The staircase is well-positioned on the left side, ensuring easy movement to the first floor without disturbing the hall area.
First Floor Layout
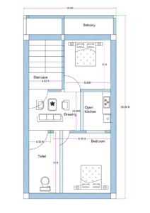
The first floor serves as the main residential level and includes three well-planned bedrooms, positioned to maintain privacy while ensuring proper ventilation. Two bedrooms have access to nearby toilets, making it ideal for family comfort.
At the center is a combined drawing and dining area, designed to act as the social heart of the home. This space connects directly to the kitchen on the right side, forming a smooth internal flow that’s convenient for daily living. The kitchen is compact, vastu-friendly, and planned with appropriate windows for fresh air and proper lighting.
A balcony is provided on the upper right side, offering an outdoor relaxation area, clothes drying space, or greenery spot.
Why This Layout Works Perfectly for 35×45 Plots
Maximizes space through a duplex design
Ground floor hall suitable for business, gatherings, or future interior modification
First floor offers complete privacy for the family
Balanced ventilation across both floors
Suitable for G+1 or future G+2 expansion
Overall, this 35×45 (33.83×44 ft actual) 3BHK duplex house plan is a highly functional, vastu-aligned, and practical layout perfect for Indian families who want both spacious living and the flexibility of a multipurpose ground floor.




















Reviews
There are no reviews yet.