9×40 1BHK
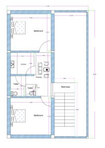
This 9.1 ft front and 7.83 ft rear trapezoidal narrow plot house plan is designed for compact urban plots with 40 ft depth. The ground floor layout includes a front-positioned staircase, a dedicated lift shaft provision, a reception space, one spacious bedroom, and a rear toilet. The planning intelligently utilizes the narrow frontage by stacking vertical circulation elements (staircase and lift) at the entrance, allowing efficient movement and future multi-floor expansion. The central reception area acts as a buffer between circulation and private spaces. The bedroom is proportioned for comfortable furniture placement despite limited width. This layout is ideal for rental units, small family living, or mixed-use compact developments in dense city areas. Structural execution can be done using 9–10 inch RCC columns and beams for proper load transfer. A practical and expansion-ready design suitable for north-facing or east-facing narrow residential plots.




















Reviews
There are no reviews yet.