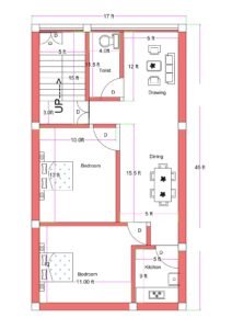
This well-planned 3BHK house design is developed on a 15 feet wide and 75 feet deep plot, making it an ideal solution for long and narrow sites. The layout smartly accommodates three comfortable bedrooms, two toilets, one functional kitchen, a dining space, and an internal staircase, ensuring both practicality and future expansion possibilities. The house is southeast-facing, and the planning has been carefully aligned to maintain proper light, ventilation, and Vastu-friendly positioning.
At the entrance, a welcoming living or drawing space flows smoothly toward the dining area, creating an open and connected environment. The kitchen is placed strategically for easy access from the dining space, allowing efficient daily use. Three bedrooms are proportioned according to the dimensions provided in the drawing, offering sufficient space for bed placement, wardrobes, and circulation. Two toilets are centrally positioned to serve all rooms conveniently while maintaining privacy.
The staircase is provided within the layout, enabling vertical expansion for an additional floor in the future, making this plan suitable for growing families or rental opportunities. A small balcony space enhances natural airflow and daylight penetration, especially important in deep plots like 15×75 feet.
Overall, this southeast-facing 3BHK home is a smart and practical design for narrow plots. It balances comfort, structural feasibility, and future scalability while ensuring efficient space utilization across the entire 75-foot depth of the site.




















Reviews
There are no reviews yet.