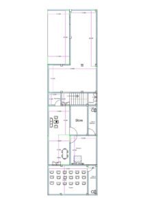
Here’s a well-balanced 17×30 feet 1BHK house plan that proves compact homes can still feel complete and functional. Designed for a 17-foot-wide plot, this layout smartly integrates parking, staircase access, and comfortable living spaces without creating congestion.
One of the key highlights of this design is the combined stair and parking area at the front portion. This makes the home ideal for urban plots where vehicle space and vertical expansion are equally important. The staircase placement allows easy construction of future upper floors while keeping the ground floor layout undisturbed.
Moving inside, the drawing room offers a welcoming space for guests and everyday family interaction. The kitchen is positioned separately to maintain privacy and proper cooking workflow. A conveniently located toilet ensures accessibility without directly opening into the living or kitchen area.
The standout feature is the generously sized bedroom (approximately 11×15 feet), providing ample space for storage, movement, and comfort — something rarely seen in compact 1BHK layouts.
This 17×30 1BHK house plan is ideal for small families, rental units, or first-time homeowners looking for a practical yet thoughtfully designed home. A smart combination of parking, expansion flexibility, and comfortable living in one efficient footprint.




















Reviews
There are no reviews yet.