10X28 1BHK
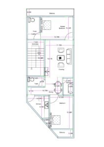
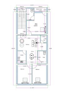
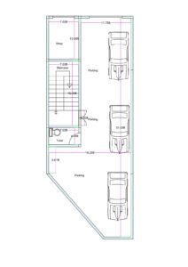
This 10×28 feet compact 1BHK house plan is designed for small rectangular plots where efficient space utilization is essential. With a 10 ft frontage and 28 ft depth, the layout includes a front staircase block, a multipurpose living area, a functional mid-positioned kitchen, a common toilet, and a spacious rear bedroom. Compared to shorter narrow plots, the additional depth allows better circulation and improved furniture placement. The staircase at the front enables future vertical expansion such as G+1 construction. The kitchen is centrally aligned to reduce plumbing complexity and optimize service lines. The toilet is compact yet functional, designed for cost-effective construction. The bedroom at the rear ensures privacy and comfort, with sufficient space for standard bed placement and storage. Structurally, the plan can be executed using RCC columns and beams of 9–10 inches for safe load distribution. Ideal for budget housing, rental units, or small families, this 10×28 layout balances practicality and affordability within a compact footprint.




















Reviews
There are no reviews yet.