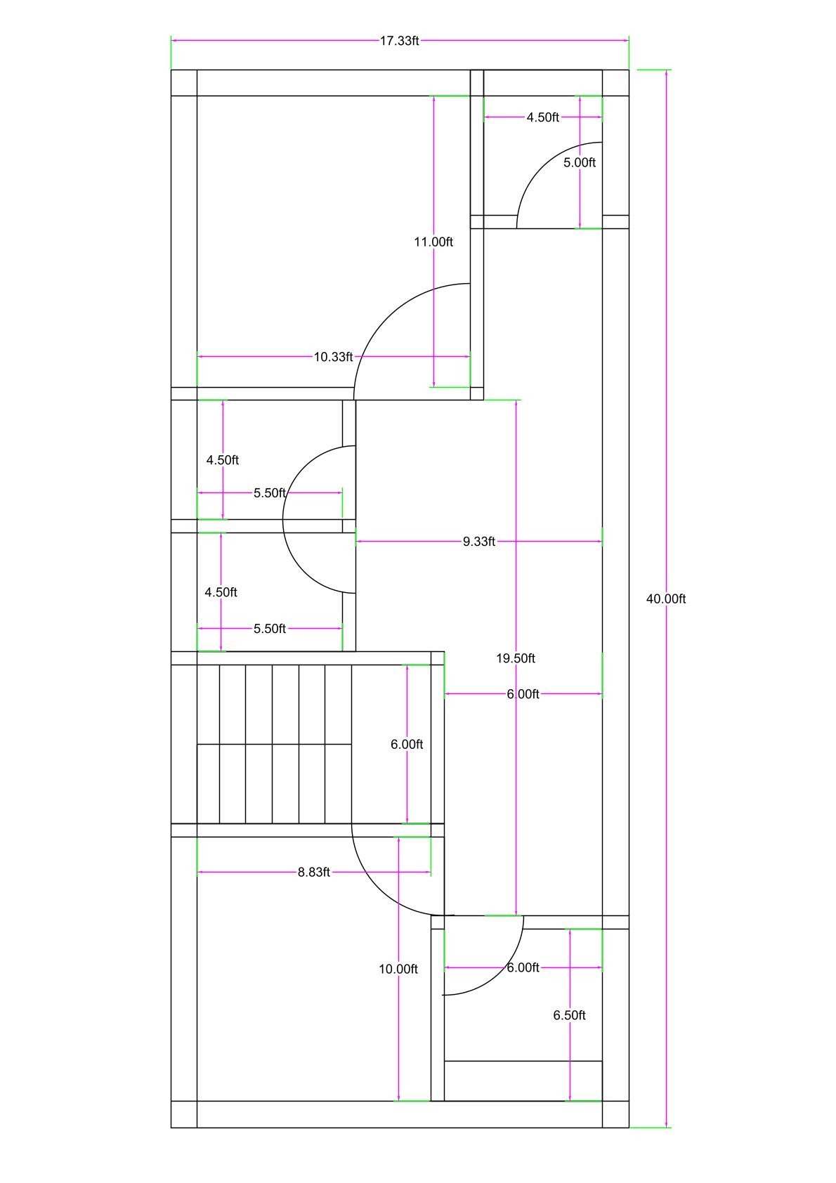
This 17.33×40 feet 2BHK house plan is designed for narrow and elongated residential plots, offering a practical layout that balances comfort, functionality, and future expansion possibilities. With a width of approximately 17.33 feet and a depth of 40 feet, this compact design maximizes internal space while maintaining proper room proportions.
The layout includes two well-sized bedrooms placed at separate ends of the house to ensure privacy for family members. A central lobby or living area connects all rooms efficiently, creating smooth circulation throughout the house. The kitchen is planned as a separate enclosed space, providing adequate working area and ventilation for daily use.
A common toilet is positioned strategically for easy access from both bedrooms and the living area without disturbing privacy. The staircase is located internally, allowing direct access to the upper floor, making this design ideal for duplex construction or rental floor development in the future.
The structural alignment of walls keeps construction simple and economical. This 2BHK house plan is suitable for urban plots, independent homes, and small family residences where space optimization is essential. It offers a smart, expandable, and cost-effective solution for modern housing needs within a compact footprint.




















Reviews
There are no reviews yet.