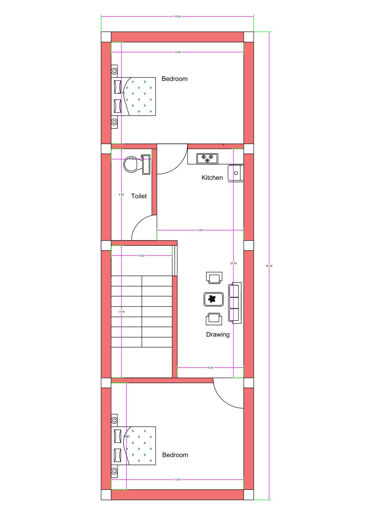
This 15×46 ft 2BHK house plan is designed for narrow plots commonly found in urban residential areas. Despite the compact dimensions, the design offers highly functional room placement and maximum usability. It includes two bedrooms, a drawing room, a kitchen, a toilet, and a centrally located staircase, making it suitable for small families, rental units, and budget-friendly house construction.
At the front of the layout is the first bedroom, sized ideally to accommodate a double bed and wardrobe. This room receives natural light and ventilation from the front side of the plot. Moving inward, the drawing room serves as the main living area of the house, providing seating space and a welcoming environment for guests and family activities.
The staircase, positioned at the center of the house, optimizes vertical circulation and makes the plan future-ready for additional floors. This placement ensures that movement between floors does not disturb the privacy of the bedrooms or living areas.
Adjacent to the staircase is a compact yet functional kitchen, offering sufficient countertop space and storage for daily cooking. The toilet, placed beside the kitchen, is conveniently accessible from all parts of the house, especially the drawing room and both bedrooms.
At the rear of the layout, the plan includes a second bedroom, providing a peaceful and private sleeping area. This back bedroom is ideal for children, parents, or rental purposes depending on the family’s needs.
The 15×46 ft layout is ideal for:
• Narrow urban residential plots
• 2BHK compact family homes
• Budget-friendly construction
• Rental house units
• Multi-storey expansion (G+1 / G+2)
This plan makes efficient use of every square foot, providing a clear circulation path, functional room sizes, and a practical, easy-to-construct design. Overall, this 15×46 ft 2BHK house plan balances affordability, compactness, and modern living requirements—perfect for homeowners wanting a smart layout in a limited plot size.



















Reviews
There are no reviews yet.