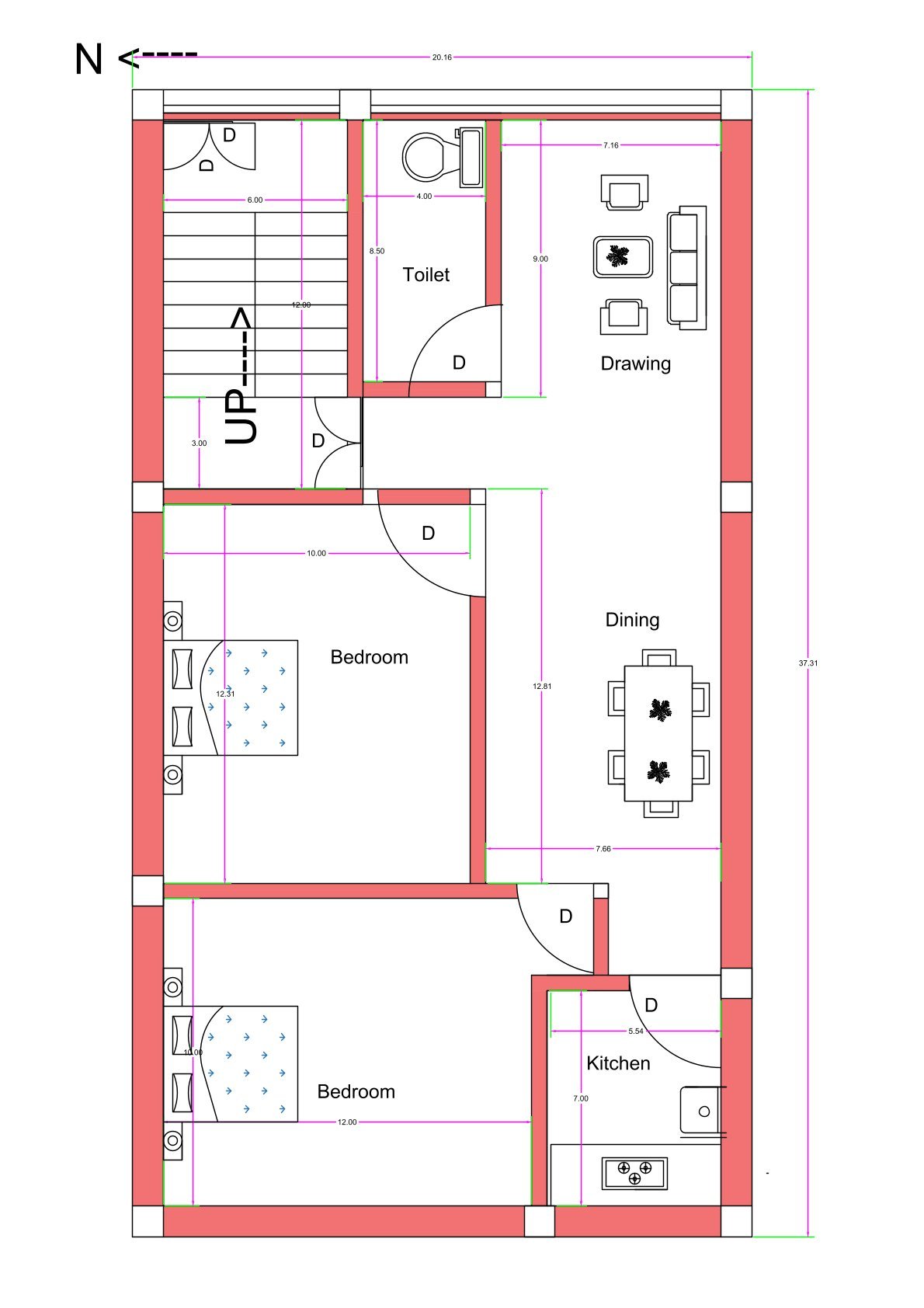
This 20×38 ft 2BHK first-floor house plan (actual dimension 20.16×37.5 ft) is designed for compact urban plots where maximum functionality is required within limited space. The layout includes two bedrooms, a dining room, a drawing area, a kitchen, a toilet, and a staircase, creating a complete and practical living environment suitable for small families or rental purposes.
At the entrance of the first floor, the staircase is positioned on the left side, providing easy access from the ground floor without disturbing interior privacy. Adjacent to the staircase, you’ll find a common toilet, sized efficiently for daily use by all family members.
Moving inside, the drawing room (measuring 7.16 ft × 9 ft) offers a relaxing area for guests and family interactions. This is followed by a well-planned dining area (12.81 ft × 7.66 ft), which acts as the central hub of the house, connecting all rooms smoothly and allowing for comfortable family meals.
The kitchen, measuring 7 ft × 5.5 ft, is compact yet functional, with enough space for cooking essentials and basic storage. Its position near the dining room makes serving and daily meal preparation convenient.
The plan includes two spacious bedrooms:
• The first bedroom, sized 10.5 ft × 12 ft, is ideal for a master or main family room.
• The second bedroom, sized 12 ft × 10 ft, works well for children, guests, or parents.
Both bedrooms maintain privacy and ventilation and are placed at opposite ends of the plan to ensure maximum comfort.
This 20×38 ft layout is ideal for:
• First-floor family homes
• Rental floors
• Budget-friendly construction
• Narrow plot development
• Multi-storey expansion (G+1, G+2, G+3)
Despite the limited size, this home offers all essential living functions with a smooth circulation path, balanced proportions, and smart space utilization.
Overall, this 20×38 ft (actual 20.16×37.5 ft) 2BHK first-floor plan is a perfect combination of compactness, practicality, and comfortable living.




















Reviews
There are no reviews yet.