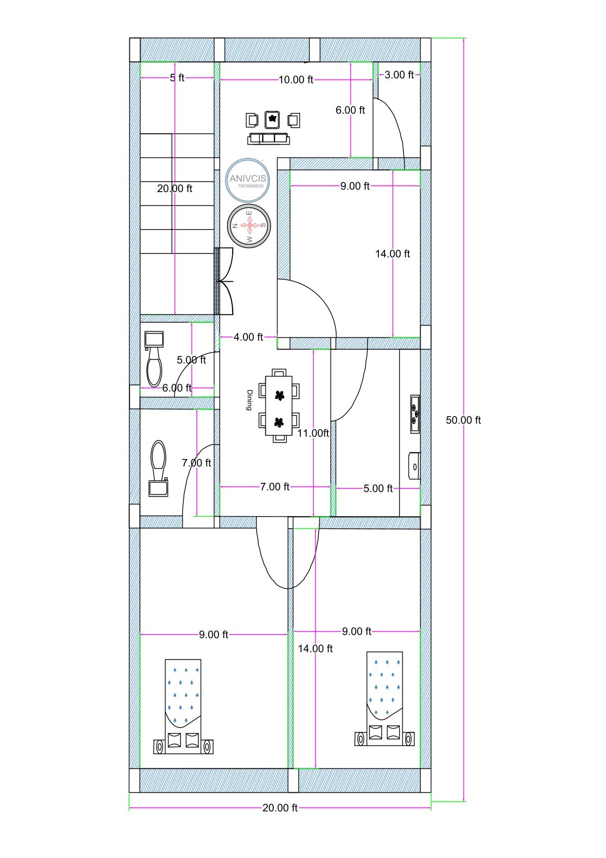
Explore this well-planned 20×50 feet 3BHK house design, created specifically for narrow and deep residential plots. With a 20 feet frontage and 50 feet depth, this layout maximizes space utilization while maintaining privacy and proper room proportions.
The plan features a centrally positioned staircase measuring approximately 5 feet in width, allowing smooth vertical expansion for future floors. Upon entering the house, a comfortable drawing room is provided at the front, offering adequate seating space for guests and daily family activities.
Adjacent to the living area is a well-organized dining space measuring around 11 feet in length, ensuring seamless connectivity between the drawing room and kitchen. The kitchen is positioned efficiently along the side wall, providing approximately 5 feet of working width for practical cooking arrangements.
The layout includes three well-sized bedrooms. Two bedrooms are placed at the rear side of the plot, each measuring approximately 9 feet by 14 feet, ensuring comfort and privacy. The third bedroom is located toward the middle section, making it suitable as a guest room or children’s bedroom.
Two toilets are provided for convenience—one common and one positioned strategically for easy access.
This 20×50 3BHK house plan is ideal for medium-sized families seeking affordability, functionality, and future expansion flexibility within a compact urban plot.












Reviews
There are no reviews yet.