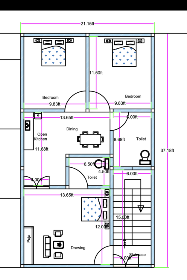
Looking for a smart and compact 20×40 feet 2BHK house plan? This efficient layout (actual plot size 21 ft × 37 ft) is designed for small and narrow residential plots, offering maximum functionality within limited space.
The house opens into a comfortable drawing room at the front, creating a welcoming living area for guests. Adjacent to the drawing room is a small puja space, making the design suitable for families who prefer a dedicated spiritual corner.
The layout features a centrally positioned dining area measuring approximately 13.6 feet in width, connecting all major rooms smoothly. The open kitchen concept (around 11.6 feet in length) allows for a modular kitchen setup, enhancing ventilation and creating a modern interior feel.
Two well-proportioned bedrooms are located toward the rear portion of the house, each offering comfortable space for double beds and wardrobes. Two toilets are provided for convenience—one common and one easily accessible from the bedroom zone.
A staircase block is positioned strategically for future vertical expansion, making the house suitable for G+1 or rental potential.
This 20×40 (actual 21×37) compact 2BHK house design is ideal for small families, first-time homeowners, or rental-focused construction in urban areas.




















Reviews
There are no reviews yet.