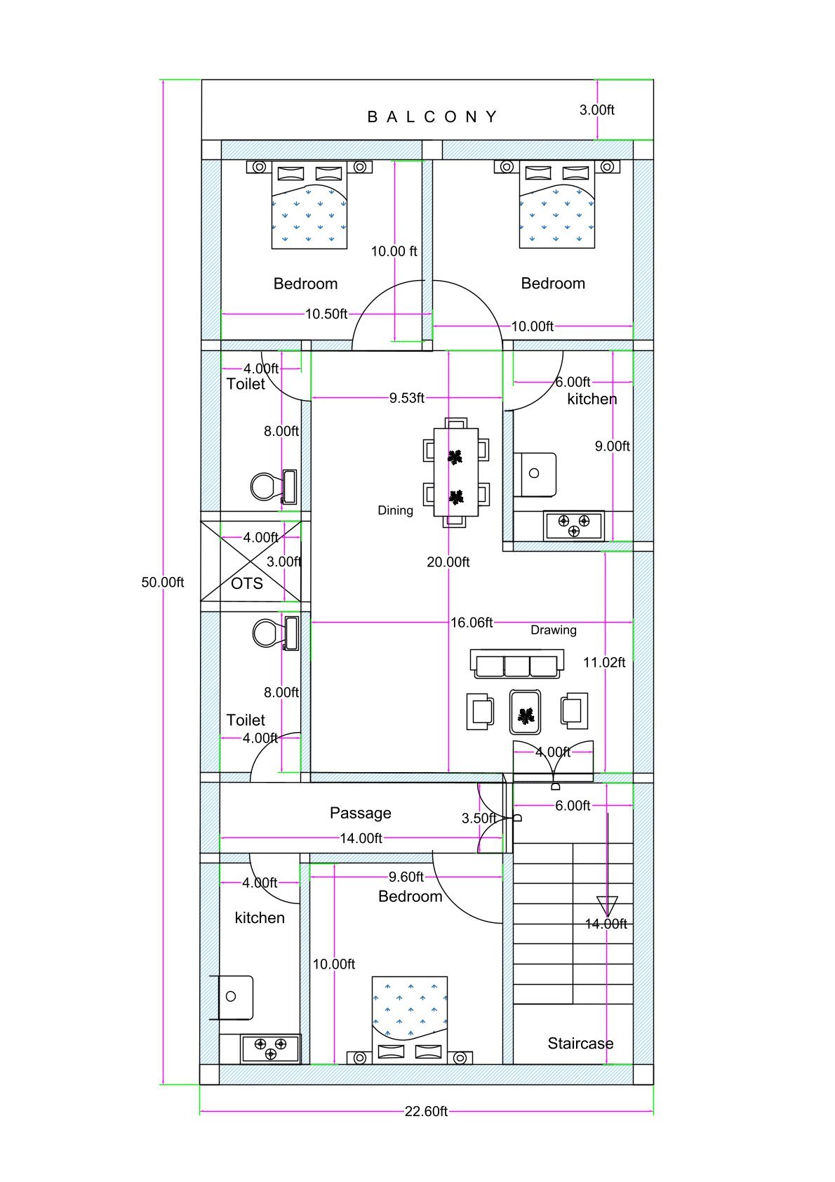
Explore this thoughtfully designed 22×50 feet west-facing mixed residential house plan (actual size 22.6 ft × 50 ft), ideal for rental investment and multi-family accommodation.
The layout smartly divides the floor into three functional residential sections:
2BHK Unit
The main 2BHK unit includes two well-sized bedrooms positioned toward the front side with access to a 3-foot-wide balcony, enhancing ventilation and natural light. A spacious drawing and dining area (approximately 20 feet in depth) forms the central living zone. The kitchen is placed along the side wall for efficient workflow. Two toilets are positioned adjacent to an OTS (Open to Sky) area, ensuring proper ventilation and plumbing alignment.
1BHK Unit
The 1BHK section includes one bedroom, kitchen, toilet, and access through a passage area. It is ideal for small families or rental tenants.
RK Unit (Room + Kitchen)
The RK portion consists of a single room with attached kitchen and toilet, making it suitable for bachelors or short-term rental use.
Staircase & Circulation
A staircase block is provided at the rear corner, allowing vertical expansion for additional floors.
Vastu Highlights (West-Facing)
West-facing entrance is suitable when properly balanced with internal planning.
Master bedroom ideally placed toward southwest for stability.
Kitchen positioned in southeast (Agni corner concept).
Toilets placed away from northeast zone.
Balcony at front enhances airflow and light entry.
OTS improves ventilation and positive energy circulation.
This 22×50 west-facing mixed layout is perfect for rental income generation, joint family setups, or small apartment-style development on a medium-width urban plot.




















Reviews
There are no reviews yet.