Looking for a 26×55 mixed-use building plan? This layout offers two commercial shops at the front and a spacious 3BHK residential unit at the rear, making it ideal for property owners seeking rental income and family accommodation in one building.
The front section includes two shops measuring approximately 8.5 ft × 12 ft each. These are suitable for small businesses such as grocery stores, salons, clinics, or offices.
A 6-foot-wide staircase is placed at the front-right corner, allowing independent access to upper floors. This feature makes the building ideal for duplex construction or rental flats above.
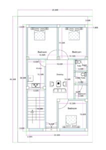
Behind the commercial area, the residential section features a large drawing room measuring approximately 18 feet in length, connected to a dining area (12.5 ft × 8 ft). The kitchen measures approximately 8 ft × 8 ft and is positioned efficiently for daily use.
Three spacious bedrooms are included — one measuring approximately 11 ft × 13.5 ft and two rear bedrooms measuring approximately 12 ft × 13.5 ft each.
Two centrally located toilets provide convenience for family members and guests.
This 26×55 commercial + residential building plan maximizes land utilization, rental potential, and comfortable living within a rectangular urban plot.




















Reviews
There are no reviews yet.