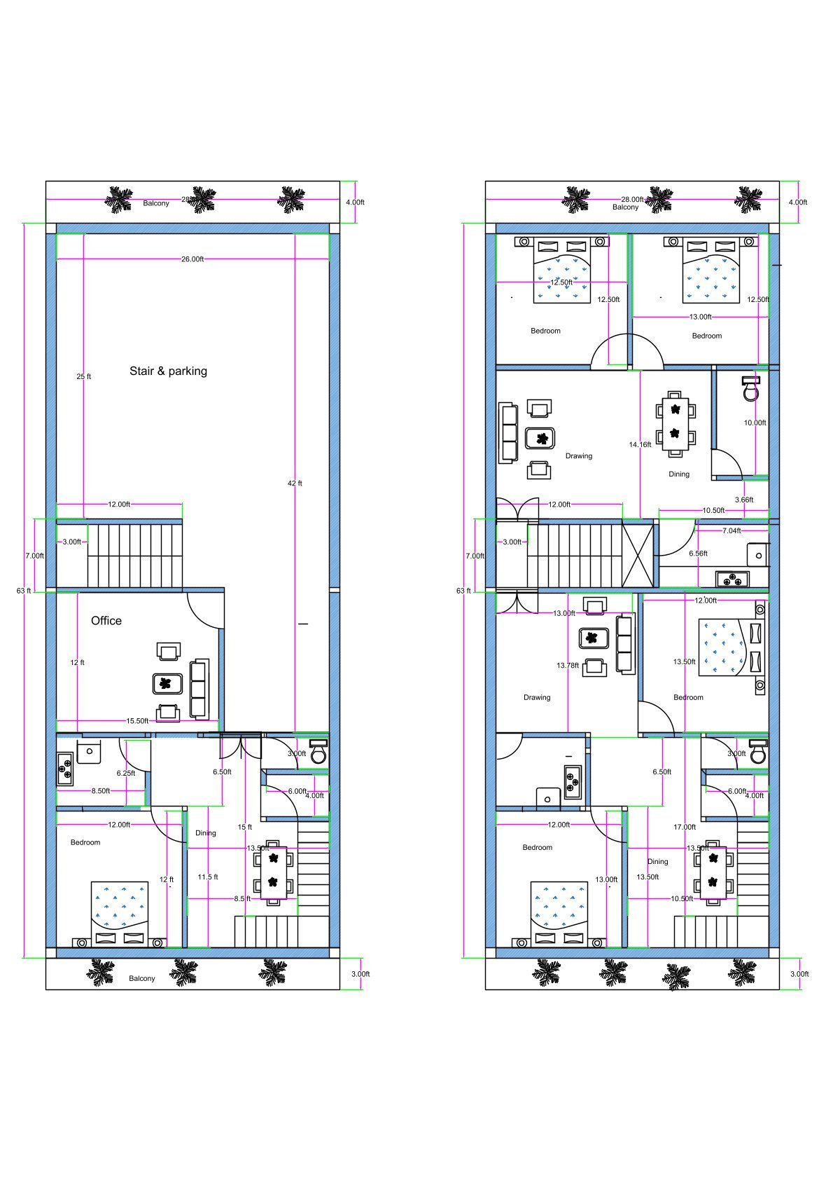
Looking for a 30×70 luxury apartment or duplex house plan? This design is developed on an actual 28 feet by 70 feet plot and is ideal for high-end residential development with rental flexibility.
The ground floor features a large parking space, an office area, and a 1BHK residential unit. This 1BHK is not just a standalone flat — it forms the lower portion of a duplex 3BHK unit. An internal staircase connects it to the upper floor, creating a luxurious double-height living experience.
The duplex living area features approximately 20-foot ceiling height, covering two floors and offering a premium feel.
On the first floor, two configurations are present:
• One normal 2BHK flat constructed above the parking section
• One upper portion of the 3BHK duplex connected internally
This setup creates a hybrid luxury apartment structure where:
One family can enjoy a spacious duplex 3BHK
Another 2BHK flat can generate rental income
This 30×70 (actual 28×70) apartment + duplex concept is ideal for investors seeking premium rental income, multi-family living, or a combination of commercial and residential use.




















Reviews
There are no reviews yet.