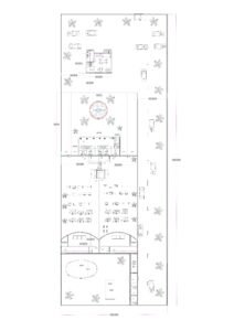
This thoughtfully designed 3BHK + 3BHK twin-unit house plan for a 40×60 plot—prepared using an actual layout size of 38.3×61.6 ft—is ideal for families looking for dual-living options, rental income opportunities, or a perfectly balanced joint-family home. The layout provides two fully independent 3BHK units, each mirroring the other in size, ventilation, comfort, and functionality.
Twin 3BHK Unit Concept
The plan is divided into a left and right unit, both structurally symmetrical. This ensures:
Equal room sizes
Balanced load distribution
Efficient construction
Lower material waste
Perfect rental division
Both units include:
A spacious living room (approx. 16.5×13 ft)
Three bedrooms placed for privacy
Two well-planned toilets
A wide kitchen area with utility/wash space
Proper window openings for ventilation
Bedroom Layout
Each unit contains:
A 14.75×12 ft master bedroom, ideal for large wardrobes and king-size beds
A 13.6×12 ft secondary bedroom with excellent natural lighting
A 12×9 ft third bedroom, suitable for kids, study, or guest room
This ensures comfort for all family members while maintaining privacy.
Central Lift + Staircase Block
At the center of the plan, a combined lift and staircase shaft serves both units. This central access point makes the plan ideal for:
Multi-storey expansion (G+1, G+2, G+3)
Rental floors
Separate upper-floor units
Elder-friendly lift access
Living + Dining + Kitchen Flow
Each unit features a bright, spacious living room, connected naturally to the dining space. From here, the kitchen is easily accessible, making daily movement smooth and efficient.
Wash + Toilet Placement
Toilets are planned both centrally and near bedrooms, ensuring convenience. Wash areas beside kitchens offer practical separation between cooking and cleaning zones.
Ideal For:
Joint families wanting two side-by-side homes
Owners wanting one unit for living + one for rental income
PG/hostel-style accommodation
Duplex or multi-storey extension
Overall, this 40×60 (actual 38.3×61.6 ft) twin 3BHK house plan is a perfect blend of symmetry, privacy, ventilation, space efficiency, and long-term value. The dual-unit concept adds flexibility for income generation or extended family usage while retaining excellent structural balance.




















Reviews
There are no reviews yet.