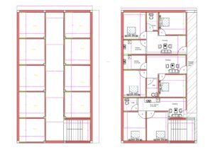
This 18×25 feet 1BHK house plan is designed to deliver maximum comfort within a compact yet practical layout. With an 18-foot frontage and 25-foot depth, the design smartly balances circulation space and room proportions.
The staircase is positioned at the front-left portion, allowing direct access to the upper floor without interfering with the internal arrangement. This makes the layout suitable for vertical expansion or rental flexibility in the future.
Upon entering, the drawing room provides a cozy yet functional sitting space measuring approximately 10.5 feet in width. Adjacent to it is a well-planned kitchen featuring an 8.5-foot-long working platform, ensuring sufficient counter space for daily cooking activities.
A common toilet sized around 4×7 feet is placed strategically for easy accessibility from both the living area and bedroom. The bedroom is one of the highlights of this plan, offering a generous 10×15 feet space that comfortably accommodates a double bed, side tables, and storage.
Despite its modest dimensions, the layout feels complete and thoughtfully arranged. This 1BHK design is ideal for small families, rental purposes, or compact urban homes where every square foot is utilized efficiently while maintaining functionality and comfort.



















Reviews
There are no reviews yet.