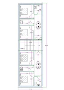
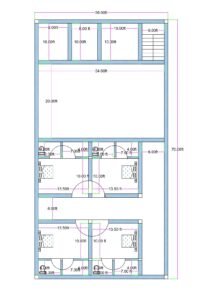
Explore this intelligently designed 22×40 west-facing 3BHK house plan (actual built-up size approximately 22 ft × 39 ft), constructed on a 25×45 plot (actual plot size approx. 26.6 ft × 45 ft). The layout is thoughtfully planned with proper setbacks and ventilation space on all sides.
The building leaves approximately 1.66 feet on the right side for ventilation, 3 feet at the rear, and 3 feet on the left side which can be used as a passage or lawn area. At the front, 4 feet is left open for ventilation and circulation. This ensures proper light and airflow throughout the house.
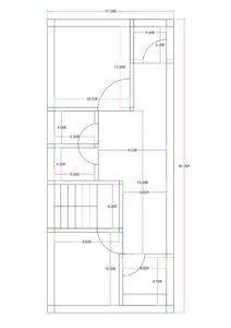
The internal layout includes three well-proportioned bedrooms, each with dimensions clearly defined in the plan. A spacious drawing room connects centrally to the bedrooms and kitchen. The kitchen measures approximately 6 feet by 10.5 feet, offering sufficient workspace and practical usability.
A unique feature of this design is the separate toilet and bathroom arrangement, enhancing convenience and hygiene. One additional toilet is accessible from the side passage area, making it useful for guests or external access.
The staircase is positioned at the front of the house, allowing independent access to the first floor. This makes the layout suitable for rental expansion or future additional flats.
Vastu Consideration (West-Facing Plot)
West-facing entrance balanced with proper internal zoning.
Master bedroom can be positioned in southwest for stability.
Kitchen ideally placed toward southeast (Agni corner principle).
Toilets kept away from northeast zone.
Adequate setbacks improve energy circulation and ventilation.
This 22×40 west-facing 3BHK house design is ideal for families seeking proper ventilation, smart planning, and future expansion potential on a medium-sized urban plot.



















Reviews
There are no reviews yet.