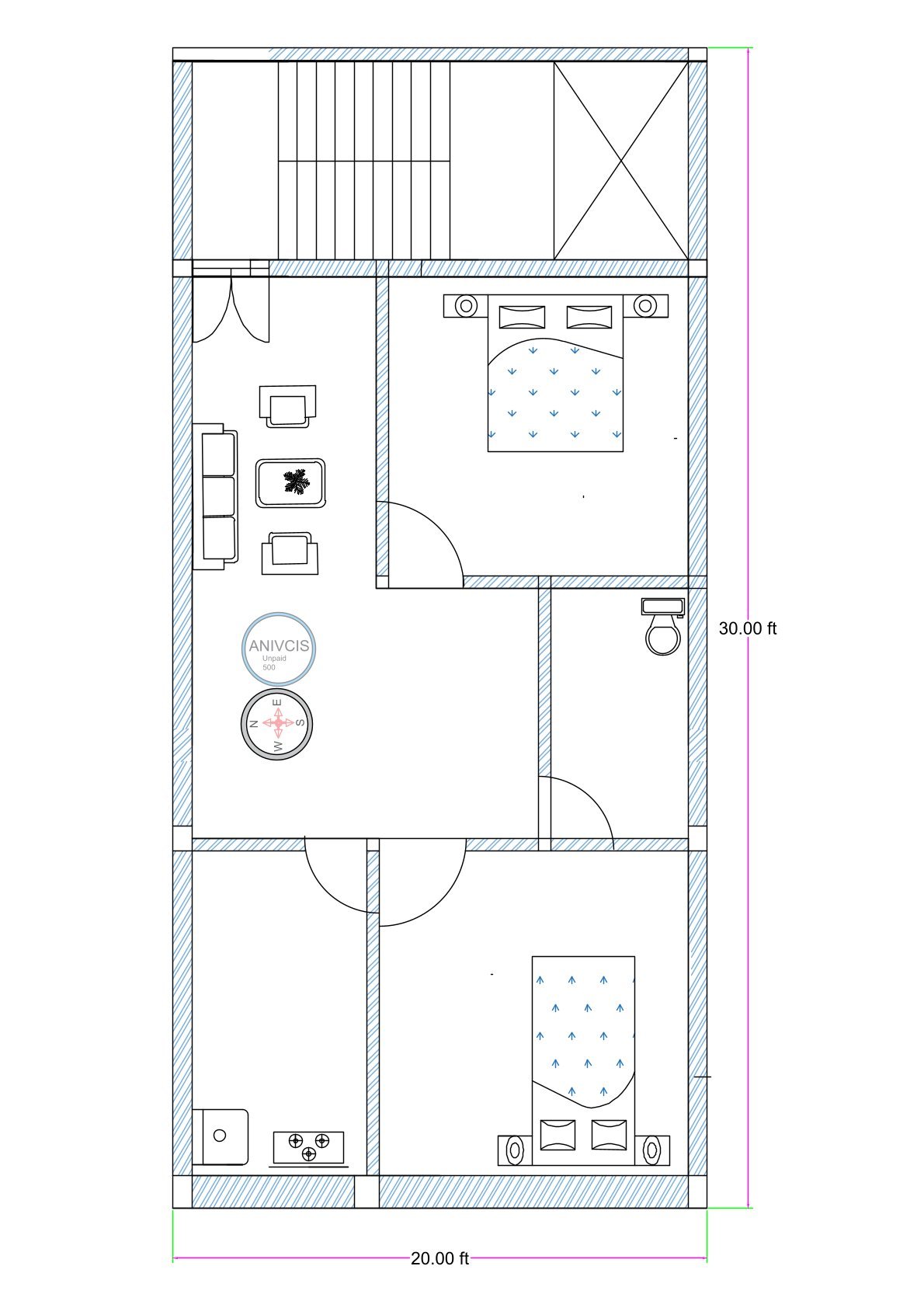
Explore this efficiently planned 20×30 feet 2BHK house design, perfect for compact urban and semi-urban residential plots. With an exact plot dimension of 20 feet frontage and 30 feet depth, this layout maximizes space utilization while maintaining functionality and comfort for a small family.
The design includes two well-proportioned bedrooms positioned for privacy and convenience. The front bedroom provides easy access and proper ventilation, while the second bedroom is placed toward the rear for added quietness. A centrally located hall serves as the main living space, offering sufficient area for sofa seating and daily family activities.
The kitchen is positioned strategically along one side wall, ensuring efficient workflow and space management. A common toilet is located near the circulation area for easy accessibility from all rooms. The plan also includes an internal staircase at the rear portion, allowing smooth vertical expansion for future floors or rental units.
This 20×30 2BHK house plan is ideal for homeowners seeking a practical, affordable, and expandable home design. It is especially suitable for Indian residential construction, rental investment properties, or first-time home builders looking to construct a compact yet comfortable house within limited plot dimensions.




















Reviews
There are no reviews yet.